ESTUDIO

OBRAS

PUBLICACIONES

CONTACTO

 
0.7 Arquitectura dpto Balbín 0.7 Arquitectura dpto Balbín 0.7 Arquitectura dpto Balbín 0.7 Arquitectura dpto Balbín 0.7 Arquitectura dpto Balbín 0.7 Arquitectura dpto Balbín 0.7 Arquitectura dpto Balbín 0.7 Arquitectura dpto Balbín

dpto BALBIN

Ciudad de Buenos Aires, Argentina

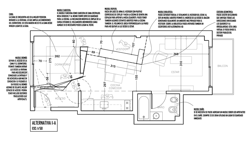
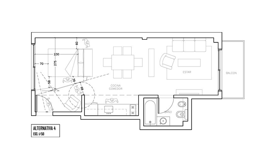
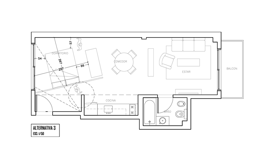
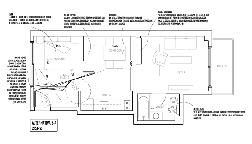
En un departamento monoambiente a estrenar se pretende reorganizar la distribución original para orientar el dormitorio hacia el este y poder así vincular el estar con el balcón. Para ello se genera en distintas alternativas una pantalla que separa el acceso del sector privado para desembocar inmediatamente en el comedor y la cocina. Con equipamiento móvil se generan distintas situaciones que hacen de un espacio único una vivienda estratificada en usos y provacidad.

AÑO: 2014

EQUIPO DE PROYECTO:

  • CAÑONERO, Juan Manuel