ESTUDIO

OBRAS

PUBLICACIONES

CONTACTO

 
0.7 Arquitectura Concurso MAD 0.7 Arquitectura Concurso MAD 0.7 Arquitectura Concurso MAD 0.7 Arquitectura Concurso MAD 0.7 Arquitectura Concurso MAD 0.7 Arquitectura Concurso MAD 0.7 Arquitectura Concurso MAD 0.7 Arquitectura Concurso MAD

Concurso MAD

Mendoza, Argentina

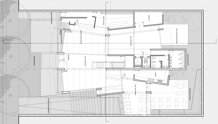
El concurso plantea dos espacios, un restaurant en el valle y un lugar de encuentro en la ciudad. Se plantea desde el inicio el uso de materiales nobles, resistentes a las características sísmicas del lugar, con un sistema de pórticos que articulan el edificio. Se utiliza la piedra local, la tierra, el hormigón, y el acero corten en cubiertas, cuyo color se mimetiza con los tonos de las montañas en otoño. La tierra cumple un rol fundamental en los ciclos de la naturaleza, es fuente de vida en el proceso de la vid, y sustento solido del proyecto. En el restaurant, desde el interior, el salón principal parece fundirse hacia el horizonte con los viñedos, en una relación fluida, en la que el límite casi desaparece, se hace diáfano y gradual. Esta intención proviene de la sensación de es Brisa amable de primavera, epoca que corresponde con el renacer de la vid luego del letargo del Invierno. La relación con el exterior permite vivir los cambios que se suscitan en el paisaje según las estaciones, como si de un observatorio se tratara, trasformando constantemente el espacio interior con cambios muy marcados de luz y color. El meeting place se materializa como una antesala al sector de los viñedos. Se abre hacia la calle para mejorar la afluencia de gente e invitar al ingreso casual.

AÑO: 2013

EQUIPO DE PROYECTO:

  • CAÑONERO, Juan Manuel
  • CURCI, Carolina María
  • GIORNO, Romina Daniela
  • MINUE, Mercedes
  • SANCHEZ CASELLA, María Amelia