ESTUDIO

OBRAS

PUBLICACIONES

CONTACTO

  0.7 arquitectura PH Malaver
0.7 arquitectura PH Malaver 0.7 arquitectura PH Malaver 0.7 arquitectura PH Malaver 0.7 arquitectura PH Malaver 0.7 arquitectura PH Malaver 0.7 arquitectura PH Malaver 0.7 arquitectura PH Malaver 0.7 arquitectura PH Malaver
0.7 arquitectura PH Malaver 0.7 arquitectura PH Malaver 0.7 arquitectura PH Malaver 0.7 arquitectura PH Malaver 0.7 arquitectura PH Malaver 0.7 arquitectura PH Malaver 0.7 arquitectura PH Malaver 0.7 arquitectura PH Malaver

ph MALAVER

Florida Oeste, Buenos Aires, Argentina

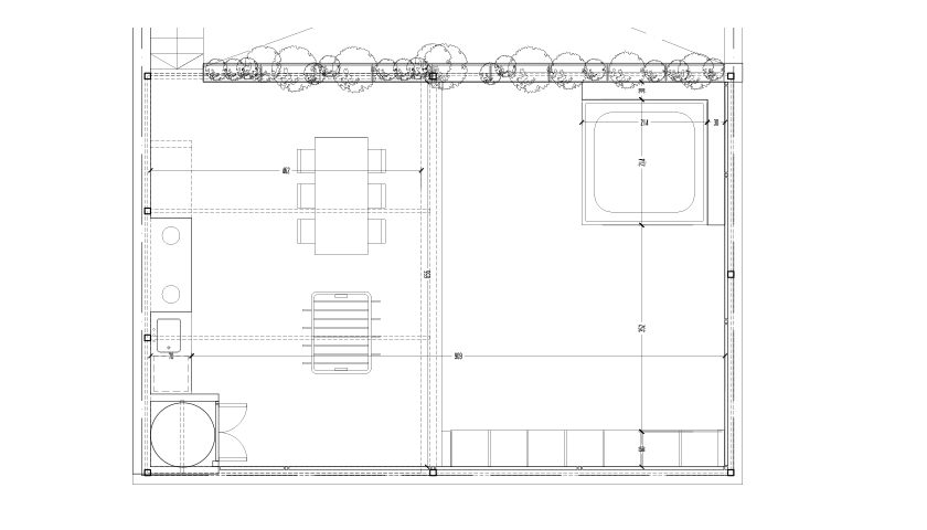
En un Ph se hizo una remodelación integral cuyo objetivo principal fue optimizar la funcionalidad de los espacios públicos, mejorar su calidad estética y adaptarlos a las necesidades actuales de uso. La intervención abarcó tanto el interior como el exterior de la vivienda, con un enfoque centrado en la ampliación de áreas sociales y la renovación completa de instalaciones. Se procedió a agrandar el estar-comedor mediante la unificación con un dormitorio en desuso, logrando una planta más abierta y luminosa. La cocina fue renovada por completo, incorporando una cubierta de vidrio para luz cenital y una barra confeccionada con chapa de acero plegada, que actúa como elemento divisor y estético, integrando los ambientes sin perder continuidad. Como parte de la renovación estética, se reemplazaron los pisos existentes por pisos de madera natural en toda la unidad, aportando calidez, continuidad visual y una identidad unificadora al conjunto de los espacios. En el exterior, se realizó una importante mejora en la terraza, donde se incorporó una pileta como espacio recreativo y se construyó un techo liviano que permite el uso del área durante todo el año, protegiendo del sol y la lluvia, y generando una expansión semicubierta.

AÑO: 2023/2024

OBRA:
0.7 arquitectura PH Malaver 0.7 arquitectura PH Malaver 0.7 arquitectura PH Malaver