ESTUDIO

OBRAS

PUBLICACIONES

CONTACTO

  0.7 Arquitectura ph Viel
0.7 Arquitectura ph Viel 0.7 Arquitectura ph Viel 0.7 Arquitectura ph Viel 0.7 Arquitectura ph Viel 0.7 Arquitectura ph Viel 0.7 Arquitectura ph Viel 0.7 Arquitectura ph Viela 0.7 Arquitectura ph Viel
0.7 Arquitectura ph Viel 0.7 Arquitectura ph Viel 0.7 Arquitectura ph Viel 0.7 Arquitectura ph Viel 0.7 Arquitectura ph Viel 0.7 Arquitectura ph Viel 0.7 Arquitectura ph Viel 0.7 Arquitectura ph Viel

ph VIEL

Ciudad de Buenos Aires, Argentina

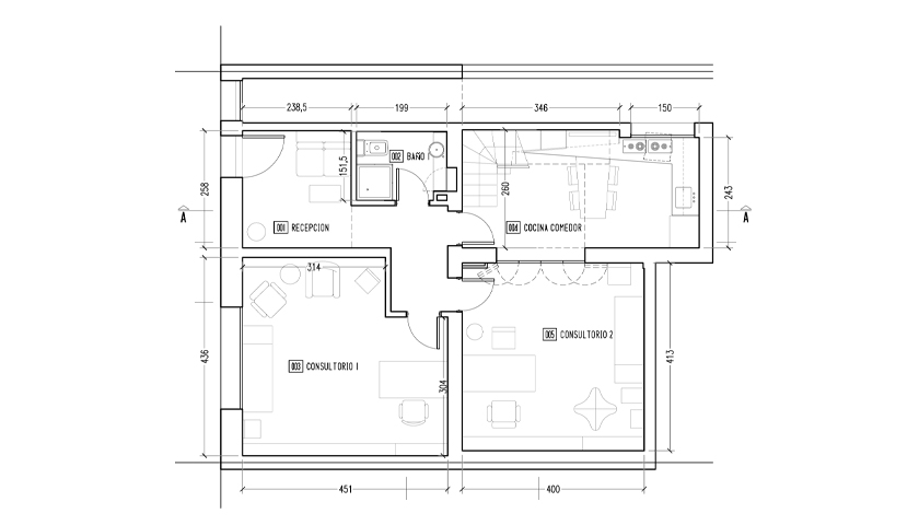
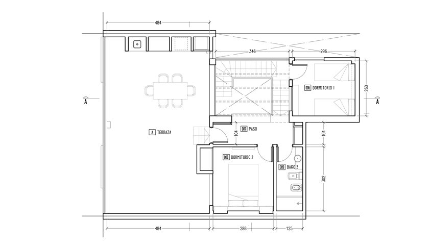
En un PH muy antiguo y abandonado se necesita ubicar una vivienda y consultorios profesionales. Se plantea como primera etapa la reconstrucción casi total del mismo y la actualización de las instalaciones, con un nuevo dormitorio con baño en la planta alta. El patio existente se mantiene como centro de la casa, dando hacia él la cocina y los dormitorios, manteniéndose el espíritu de comunión con el espacio central. En la planta baja se orientan los consultorios con recepción, permitiendo un uso dual de la vivienda sin interferencias funcionales. Se rehabilita la terraza para albergar el lavadero y un sector de parrilla.

AÑO: 2016/2017

OBRA:
0.7 Arquitectura ph Viel 0.7 Arquitectura ph Viel 0.7 Arquitectura ph Viel

0.7 Arquitectura ph Viel

0.7 Arquitectura ph Viel 0.7 Arquitectura ph Viel 0.7 Arquitectura ph Viel